Bf-Em-B1防落物网生产厂家

一、Bf-Em-B1防落物网设计原则:
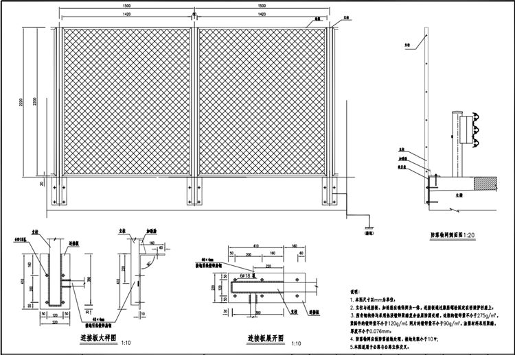
在其它道路与本路交叉的分离立交,为了下穿道路的行车安全,在上跨桥的两侧设置防落物,设置范围为下穿公路宽度并各向外延长10-20m。防抛网固定在分离立交的混凝土护栏上。防抛网的网片采用钢板网,所有钢构件均采用热浸镀锌聚酯复合涂层防腐处理,边框的镀锌量不小于275g/㎡,紧固件的镀锌量不小于120g/㎡,网片的镀锌量不小于90g/㎡,涂塑材料采用聚酯,厚度不小于0.076mm。网片网格尺寸为60×22mm。
二、Bf-Em-B1防落物网施工注意事项:
(1) 防落物安装时要求网面平整,无明显凹凸现象,边框与立柱应连接牢固,整体连接平顺。
(2) 防落物网应做接地处理,接地电阻小于10Ω。
(3) 符合 JTG/ T3671-2021《公路交通安全设施施工技术规范》的要求。
三、Bf-Em-B1防落物网参数要求:
(1) 立柱,方管60*80*5.5*2600mm。
(2) 边框,角钢40*50*2.5mm。
(3) 网片,钢板网22*60*2.5*2.5mm。
(4) 加强肋,50*100*10mm。
(5) 连接板,220*570*10mm。
(6) 尺寸,2220*1500mm。
