钢筋网刺铁丝围界造价多少钱一米

钢筋网刺铁丝围界规范要求:
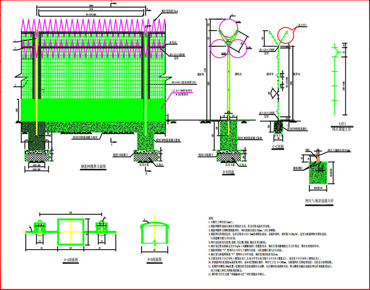
1.本图尺寸单位均以mm计。
2.钢筋网刺铁丝围界基础及地梁采用现浇方式,其余采用成品构件安装。
3.钢筋网刺铁丝围界采用喷塑钢筋网片,网片的钢丝直径为5mm;立柱亦喷塑。
4.钢筋网片四周设边框,边框采用45×28×5mm角钢焊接而成,表面热镀锌,镀锌量≥120g/m²,边框与钢筋网网片焊接连接,
以防盗螺栓组与立柱相连。
5.网片涂层应均匀光滑,连续,无孔隙,裂缝,脱皮及其它缺陷。
6.刺丝笼定型后应满足至少1kg/m(双圈螺旋状)的重量要求;刺丝采用双圈螺旋交叉刀片型式,整体为热镀锌构件。
7.钢筋网顶部“V”型网片以卡环与下部网片相连,以防盗螺栓组与立柱相连。
8.刺丝笼与钢筋网顶部“V”型网片以卡环相连,刺丝笼刺丝间距为15cm。
9.土基压实度不小于93%(重型击实),石灰土中生石灰含量不小于12%(重量比),压实度不小于95%(重型击实)。
10.在钢筋网片底部加1m高密集网片,由φ3浸塑钢丝制作,网片尺寸12.5×100mm,与钢筋网片采用电焊连接,以防止小动物钻爬。
11.在钢筋网刺铁丝围界外侧每150m设置一处醒目的禁止翻越警告标识牌,标识牌内容应清晰可见,警示牌具体做法由建设单位在现场组织运行、设计和施工单位共同协商后确定。
12.图中数字代号见图“附属施05-2/2”材料用量表中所示。
13.钢筋网刺铁丝围界每隔30m设置1处伸缩缝,围界转弯处以转弯处基座大样形式处理;地势变化较大处以伸缩缝形式处理。
14.在地表下的混凝土基础、地梁与土面接触的周围表面,需刷沥青。
15.钢筋净保护层厚度不小于50mm。
16.刺丝笼安装前,须矫正除锈,防腐要求不小于8年。
17.钢筋网刺铁丝围界平面位置见“附属施01”图。
