热镀锌刺铁丝隔离栅设计说明

一、热浸镀锌刺铁丝隔离栅设计说明:
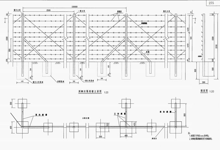
1、本图尺寸以m为单位。
2、本图适用于刺钢丝隔离栅的一般布设。
3、刺钢丝隔离栅的立柱间距为2.5m,两个双向斜撑间距为50m,两个三向斜撑间距为100m。凡拐角处均应设置单向斜撑。在跨越天然障碍物时,端头处应设置垂直双向斜撑。
4、采用加强型刺钢丝网(Bw-1.7-102J),钢丝直径为1.7mm,刺距102mm,捻数不小于7。加强型刺钢丝网股线及刺线采用高强度低合金钢丝,刺钢丝拉上后,用14号铁丝(120mm长)将刺钢丝绑扎在铁钩上,横向与斜向钢丝相交处均应用14号铁丝绑扎固定。
5、刺钢丝网立柱及紧固件采用热浸镀锌防腐处理,立柱镀锌量600g/㎡,紧固件镀锌量350g/㎡。
二、热浸镀锌刺铁丝隔离栅参数说明:
1、端头立柱,58*50*3.0*2150mm。
2、一般立柱,58*50*3.0*2150mm。
3、斜撑,50*50*3.0*1533mm。
4、刺钢丝,Bw-1.7-102J。
5、绑扎铁丝,14号铁丝。
6、防腐工艺,热浸镀锌。
7、外形尺寸,1650*2500mm。
