刺铁丝隔离栅价格多少钱一米

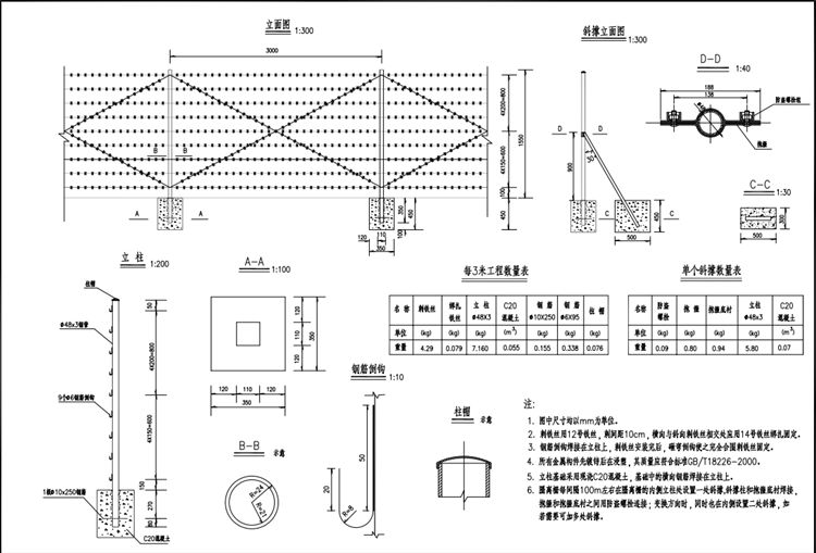
全线除天然屏障处(河流、沟渠等),其余地方(包括旱桥部分)均连续设置结构合理、美观大方的刺铁丝隔离栅。一般路段采用刺铁丝隔离栅。刺铁丝隔离栅应设在路基两侧用地界碑内0.3米处,地形有起伏时,刺铁丝隔离栅按阶梯形设置;刺铁丝隔离栅遇到≤3米的沟渠或涵洞时,可采用直接经过;每段刺铁丝隔离栅的起终点或刺铁丝隔离栅需要断开的地方,应针对不同的情况做端头围封,在刺铁丝隔离栅需改变方向的地方,应做拐角处理。刺铁丝隔离栅基础预制施工。为满足公路、桥梁和通道等养护管理的需要,可在适当位置设置便于开启以满足车辆或人员进出的刺铁丝隔离栅活动门,刺铁丝隔离栅的立柱需要根据活动门的大小和开启情况进行加强。刺铁丝隔离栅的钢构件均应做热浸镀锌防腐处理。镀锌时应符合下表的规定,热浸镀锌所用的锌应为符合《高速公路交通工程钢构件防腐技术条件》中引用的GB/T470中所规定的0号或1号锌锭。镀锌后再镀塑,颜色为果绿色。
