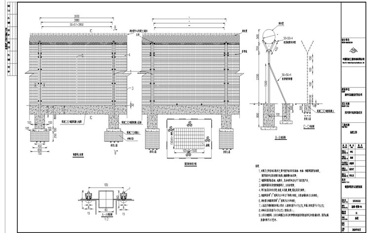
通用运输机场防攀爬隔离网生产制造要求

通用运输机场防攀爬隔离网生产制造要求:
1.本图通用运输机场防攀爬隔离网尺寸单位均以毫米计,图中数字标识详见场施一附属一钢筋网围界结构图,围界围栏外应设有醒目的禁止翻越警告标识牌。
2.通用运输机场防攀爬隔离网除基础、地梁外,其余构件均为生产厂家定型产品。
3.通用运输机场防攀爬隔离网采用喷塑钢筋网片,立柱亦喷塑。
4.网片涂层应均匀光滑,连续,无孔隙,裂缝,脱皮及其它缺陷。
5.通用运输机场钢筋网顶部“V”型网片以卡环与下部网片相连,以防盗螺栓组与立柱相连。
6.刺丝笼与钢筋网顶部“V”型网片以卡环相连。
7.土基及开槽两侧的回填土要求:土基墩实度不小于93%,回填土密实度不小于93%。
8.砂砾石层压实度不小于95%(重型击实)。
9.通用运输机场防攀爬隔离网立柱与钢筋网、立柱与斜撑及立柱与延伸臂的连接采用防盗形式并经防腐处理,围界金属防腐年限不小于8年。
