Bf-Em-B1钢板网防抛网生产厂家

钢板网防抛网
1. 本图尺寸以mm为单位。
2.边框由不等边角钢焊接而成,立柱由钢板冷弯后焊接加工制成。
3.钢板网为整板加工而成,网片与边框采用焊接;立柱与连接板应确保焊为一体,连接板通过地脚螺栓固定生根。
4.立柱与边框用螺栓连接,螺栓的两端均应制作螺纹。
5.除紧固件采用热浸镀锌处理外,其它构件均应进行浸塑处理。
6.括号内数字适用Bf-Em-B2桥梁护网。

钢板网防抛网
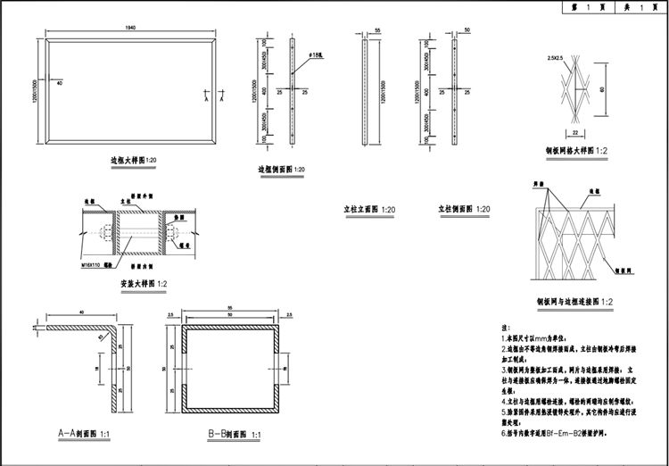
1. 本图尺寸以mm为单位。
2.边框由不等边角钢焊接而成,立柱由钢板冷弯后焊接加工制成。
3.钢板网为整板加工而成,网片与边框采用焊接;立柱与连接板应确保焊为一体,连接板通过地脚螺栓固定生根。
4.立柱与边框用螺栓连接,螺栓的两端均应制作螺纹。
5.除紧固件采用热浸镀锌处理外,其它构件均应进行浸塑处理。
6.括号内数字适用Bf-Em-B2桥梁护网。