引江济淮工程铁丝网围栏价格多少钱一米

引江济淮工程铁丝网围栏构造说明:
1、本图尺寸单位为毫米;;
2、三角折弯护栏网网片尺寸: 2.0x3.0m,三道折弯,通过链接附件与桃型钢管立柱固定。
3、引江济淮工程铁丝网围栏网片采用Q235低碳冷拔钢丝焊接后经过液压成型,钢丝采取浸塑防腐处理,护栏网网片网格尺寸60mmx200mm,2mm厚桃型钢管立柱尺寸: 70mmx 10mm,高2.3m。

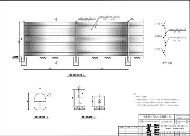
引江济淮工程铁丝网围栏构造说明:
1、本图尺寸单位为毫米;;
2、三角折弯护栏网网片尺寸: 2.0x3.0m,三道折弯,通过链接附件与桃型钢管立柱固定。
3、引江济淮工程铁丝网围栏网片采用Q235低碳冷拔钢丝焊接后经过液压成型,钢丝采取浸塑防腐处理,护栏网网片网格尺寸60mmx200mm,2mm厚桃型钢管立柱尺寸: 70mmx 10mm,高2.3m。