浸塑围栏价格多少钱一米

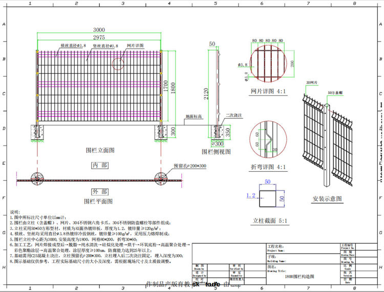
浸塑围栏构造说明:
1.图中浸塑围栏所标注尺寸单位以mm计;
2.浸塑围栏由立柱(含盖帽)、网片、304不锈钢六角卡爪、304不锈钢防盗螺栓等部件组成;
3.浸塑围栏立柱采用50*50方形型材,材质为双面热镀锌板,厚度为1.2,镀锌量≥120g/m²;
4.浸塑围栏横丝、竖丝均采用直径∅3.8热镀锌冷拔钢丝,镀锌量≥100g/m²,采用压力熔焊制成;
5.浸塑围栏立柱中心距为3000,安装高度为1800,网格80*200,折弯30*60;
6.浸塑围栏加工工艺:网片焊接成型后→脱脂→纯水清洗→硅烷化处理→烘干→环氧底粉→高温聚合处理→
彩色聚酯涂层→高温聚合处理,涂层厚度≥100um,防腐能力达到25年以上;
7.浸塑围栏基础需用C25混凝土浇注,立柱预留孔∅ 200*300,立柱埋入后二次浇注固定,埋入深度为300;
8.图示浸塑围栏基础仅供参考,工程实际基础尺寸的大小及深度,需根据现场尺寸及土质做调整。
