厂家供应三角折弯护栏网,河道水库围栏,桃型立柱浸塑,引江济淮

引江济淮三角折弯护栏网图纸说明:
1.本图尺寸单位为毫米
2. 三角折弯护栏网网片尺寸:2.0x3.0m,三道折弯,通过链接附件与桃型钢管立柱固定;
3.护栏网网片采用Q235低碳冷拔钢丝焊接后经过液压成型,钢丝采取浸塑防腐处理,护栏网网片网格尺寸60mmx200mn,2mm厚桃型钢管立柱尺寸:70mmx100mm,高2.3m。


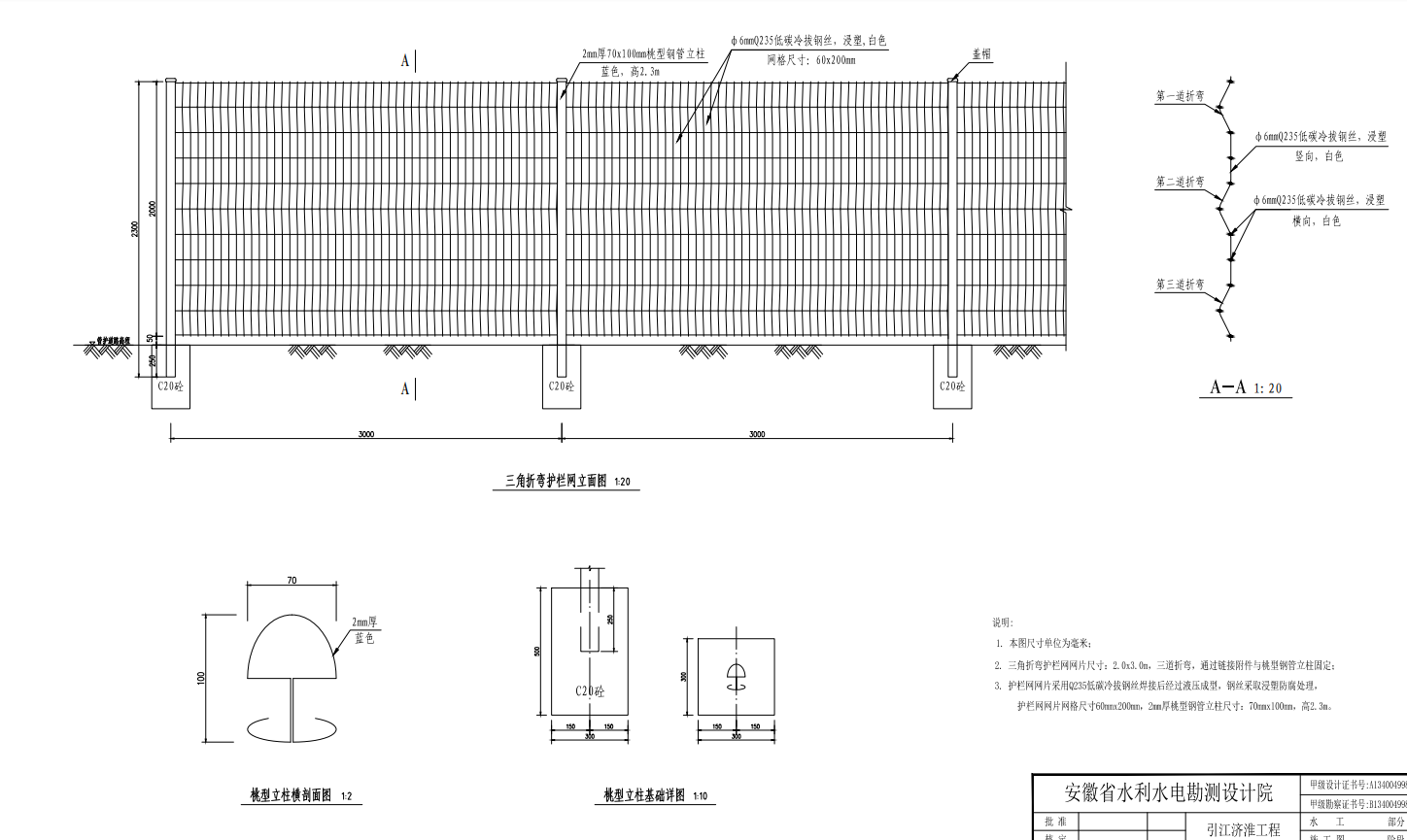
引江济淮三角折弯护栏网图纸说明:
1.本图尺寸单位为毫米
2. 三角折弯护栏网网片尺寸:2.0x3.0m,三道折弯,通过链接附件与桃型钢管立柱固定;
3.护栏网网片采用Q235低碳冷拔钢丝焊接后经过液压成型,钢丝采取浸塑防腐处理,护栏网网片网格尺寸60mmx200mn,2mm厚桃型钢管立柱尺寸:70mmx100mm,高2.3m。
