河北厂家定制武夷立交桥防抛网 镀锌网片钢丝 角钢高速公路护栏

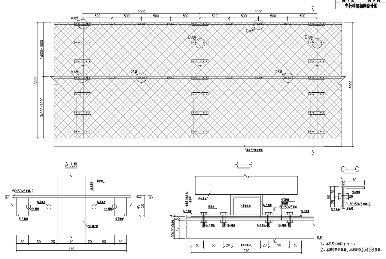
说明:
1.本图尺寸均以mm计。
2.本图中所用钢材,材质均为Q345B型钢,并进行镀锌处理。
3.厂家施工时注意在N2、N3、N5及N6钢板中相应位置预留螺栓孔。
4.图中M10螺栓性能等级为8.8级。
5.图中参数t表示钢板的厚度,单位为mm。
6.现场施工过程应采取有效的防护措施,防止施工构件等其他物品落入桥下行车限界中。


说明:
1.本图尺寸均以mm计。
2.本图中所用钢材,材质均为Q345B型钢,并进行镀锌处理。
3.厂家施工时注意在N2、N3、N5及N6钢板中相应位置预留螺栓孔。
4.图中M10螺栓性能等级为8.8级。
5.图中参数t表示钢板的厚度,单位为mm。
6.现场施工过程应采取有效的防护措施,防止施工构件等其他物品落入桥下行车限界中。
