F-Ww-C焊接网隔离栅
一、F-Ww-C焊接网隔离栅一般说明:
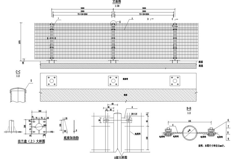
1.本图尺寸单位均以mm计。
2.焊接网单片加工尺寸为2880x1816mm,其拐角部分应一次折弯形成。
3.焊接网用Φ4mm的低碳钢丝制造,并应符合《一般用途低碳钢丝》(YB/T5294-2009)、《一般用途热镀锌低碳钢丝》(GB/T343-1994)的规定。
4.F-Ww-C焊接网隔离栅每隔24m间距设置一个斜撑,在F-Ww-C焊接网隔离栅改变方向的地方和端头应设斜撑,或两侧加斜撑。
5.斜撑与抱箍应首先焊接成整体,然后采用下述防腐方法进行防腐处理。
6.立柱材料性能应符合GB/T700-2006,尺寸规格应符合GB/T6723-2008的规定。
7.施焊前,要求各单体矫正平直并去毛刺及锈迹。
8.焊接部位要求过渡圆滑,无焊渣,虚焊,气孔等缺陷。
9.F-Ww-C焊接网隔离栅采用先镀锌后镀塑的防腐形式。第一层热浸镀锌所用的锌应为《锌锭》(GB/T470-2008) 中规定的特一号或一号锌,镀锌量:网片为90g/㎡; 紧固件、连接件为120g/㎡;立柱、横梁等为270g/㎡。第二层非金属镀层可为聚(氯)乙烯或聚酯,厚度为:聚(氯)乙烯材料:网片0.3mm,其它为0.4mm;聚酯材料:0.1mm;紧固件连接件也可采用一层热浸镀锌的防腐方法,镀锌量为350g/㎡。
10.镀塑层应满足: (1)均匀光滑、连续、无肉眼可分辨的小孔、空间、孔隙、裂缝、脱皮及其它有害缺陷。(2) 镀层应附着良好,在人工加速实验后,镀层不允许产生裂缝、破损等损伤现象及褪色。
二、F-Ww-C焊接网隔离栅一般参数:
1.立柱,Φ48*3*2266mm;
2.网格,75*150mm;
3.网丝,Φ4.0mm;
4.斜撑,角钢L40*40*3*1910mm;
5.连接钢板,66*30*3mm;
6.法兰盘,200*200*6mm;
7.加强肋,25*50*150*8mm;
8.安装尺寸,1870*3000mm。


