广州绕城高速公路防眩网项目
广州绕城高速公路防眩网

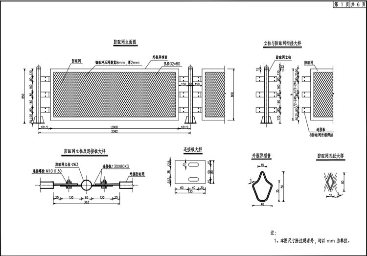
1.本图尺寸除注明者外均以mm为单位。2.防眩网每12m断开一次,断开处立柱间距为210~250mm(中心距),避免受台风影响成片倒塌 ,断开位置立柱脚之间采用Φ5铜线捆绑连接,进行防雷接地处理。3.防眩网与外框钢管焊接成整体结构。板材采用Q235低碳钢,冲压成型。螺栓均采用8.8级大六角头高强螺栓,采用防盗螺栓, M10X30螺栓采用全螺纹,头部高度为6.4mm。4.所有钢构件除注明者外均采用Q235钢制作并进行防腐处理。防腐要求应按照《公路交通工程钢构件防腐技术条件》( GB/T 18226-2015)执行。钢管、钢板、钢带,平均镀锌层附着量不低于600g/㎡,平均镀锌层厚度不低于0.084mm;紧固件, 平均镀锌层附着量不低于350g/㎡,平均镀锌层厚度不低于0.049mm,镀层应均匀,镀层均匀性不低于25%。5.焊缝等级要求:焊缝质量等级不低于二级。侧壁钢板与法兰盘、钢管与法兰盘间焊接采用满焊焊透;所有焊缝应连续焊接并平滑过渡,所有加劲肋焊缝应双面满焊。6.化学锚栓M12x150中心距混凝土边距c应不小于96mm ,两螺栓中心间距应不小于120mm。7.钻孔时须保证钻机、钻头与植入钢筋的受拉方向一致,保证孔径与孔深尺寸准确。8.钻孔应避开钢筋特别是预应力筋和受力筋。钻孔时,如果钻机突然停止或钻头不前进时,应立即停止钻孔,检查是否碰到内部钢筋。对于失败孔,应填满化学粘结剂或高一个强度等级的水泥砂浆,另选新孔。9、植筋施工工艺严格按照:定位、钻孔、清孔、钢材除锈、注胶、植筋、固化进行。10.施工工艺等应符合JGJ145-2004《混凝土结构后锚固技术规程》相关要求。11.不同材质的金属构件互相接触时,应使用非金属套、垫或保护层使两者隔离。12.接地电阻必须小于10Ω ,根据土壤电阻率等实际情况确定接地圆钢和接地角钢的数量,所需工程量按实际计量。防雷接地应满足《建筑电气工程施工质量验收规范》( GB 50303)要求。13.工程数量表仅供参考,具体数量据实计量.其他未尽事项应按现行有关规范、标准执行。
