G331线布尔津至哈巴河公路刺钢丝隔离栅图纸
F-Bw-C刺钢丝隔离栅 - G331线布尔津至哈巴河公路建设项目
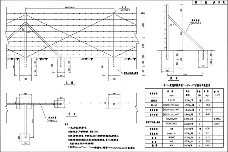
本图尺寸均以毫米为单位。刺钢丝采用12号镀锌刺钢丝,刺距10cm。挂钩与槽钢立柱焊接,刺钢丝拉上后用12号镀锌铁丝将其绑扎在铁钩上。刺钢丝隔离栅立柱每隔99米在立柱两侧加纵向斜撑,每198米或隔离栅改变方向处在立柱三个方向加斜撑。立柱用56mmx50mmx2.0mm冷弯边槽钢,斜撐用49mmx50mmx2.0mm冷弯边槽钢。剌钢丝隔离栅立柱采用56×50×2.0×1850槽钢热镀锌喷塑防腐处理,钢构件镀锌量为275g/㎡,涂塑层厚度大于76μm。

立柱安装间距设置为3m。刺钢丝采用12号镀锌钢丝,刺钢丝镀锌量为120g/㎡。刺丝间距4×15+4×20。基础混凝土为 C30,尺寸400×400×600。按新规范增加隔离栅小门。所有钢构件均应进行热浸镀锌涂塑处理,螺栓、螺母、垫圈等连接件的镀锌量为120g/㎡,其它构件为 275g/㎡,网片塑层厚度不小于0.3mm。其它钢构件涂塑层厚度不小于76μm。
