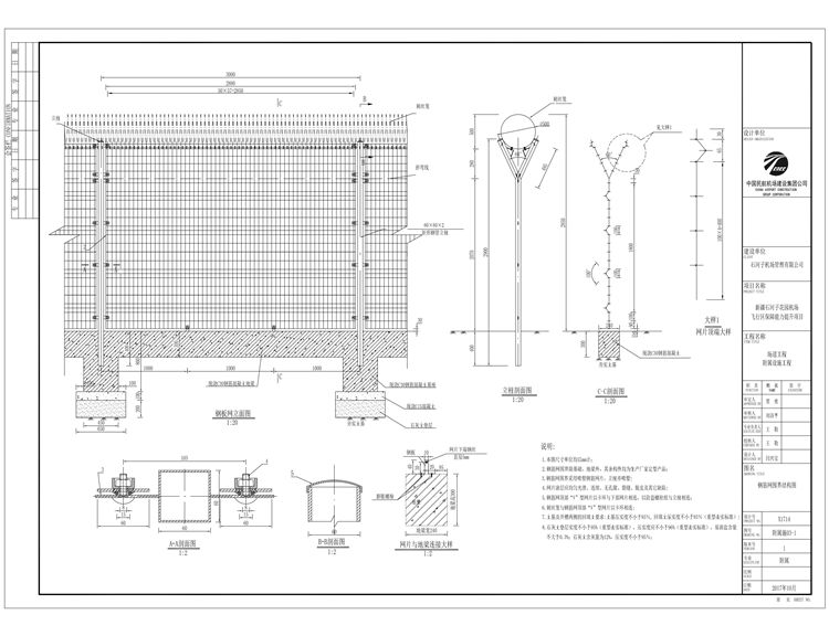
机场飞行区保障钢筋网围界设计规范

一、机场飞行区保障钢筋网围界设计规范
1.本图钢筋网围界尺寸单位均以mm计。
2.钢筋网围界除基础、地梁外,其余构件均为生产厂家定型产品。
3.钢筋网围界采用喷塑钢筋网片,立柱亦喷塑。
4.钢筋网围界网片涂层应均匀光滑、连续、无孔隙、裂缝、脱皮及其它缺陷。
5.钢筋网围界项部“V”型网片以卡环与下部网片相连,以防盗螺栓组与立柱相连。
6.钢筋网围界刺丝笼与钢筋网顶部“V”型网片以卡环相连。
7.钢筋网围界土基及开槽两侧的回填土要求:土基压实度不小于93%,回填土压实度不小于93% (重型击实标准) 。
8.钢筋网围界石灰土垫层实度不小于95% (重型击实标准),压实度应不小于96% (重型击实标准),易溶盐含量不大于0.3%;石灰土含灰量为12%,压实度不小于95%。
二、机场飞行区保障钢筋网围界材料说明
1、立柱,60*60*2mm矩形管;
2、网格,50*100mm;
3、网丝,Φ5.0mm;
4、刀刺网,Φ500mm;
5、刺绳,12#刺铁丝;
6、折弯线,4道。
