热浸镀锌刺铁丝隔离栅生产厂家

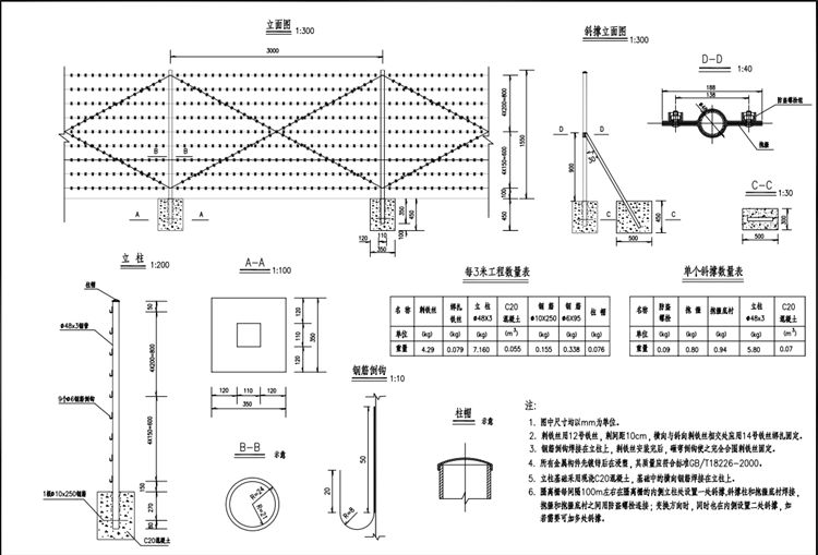
1.图中刺铁丝隔离栅尺寸均以mm为单位。
2.刺铁丝用12号铁丝,剌间距10cm ,横向与斜向剌铁丝相交处应用14号铁丝绑扎固定。
3.刺铁丝隔离栅钢筋倒钩焊接在立柱上,剌铁丝安装完后,砸弯倒钩使之完全合围剌铁丝固定。
4.刺铁丝隔离栅所有金属构件先镀锌后在浸塑,其质量应符合标准GB/T18226- 2000。
5.刺铁丝隔离栅立柱基础采用现浇C20混凝土,基础中的横向钢筋焊接在立柱上。
6.刺铁丝隔离栅每间隔100m左右在刺铁丝隔离栅的内侧立柱处设置一处斜撑,斜撑柱和抱箍底衬焊接,抱箍和抱箍底衬之间用防盗螺栓连接;变换方向时,同时也在内侧设置二处斜撑,如若需要可加多处斜撑。
