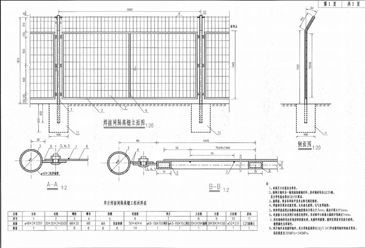
京沪高速公路焊接网隔离栅概述

1.京沪高速公路焊接网隔离栅概述
1.1京沪高速公路焊接网隔离栅项目概况
本工程为京沪高速公路(编号G2)新沂至淮安段改扩建工程,北起于京沪高速公路苏鲁省界,经徐州市新沂市、宿迁市沭阳县,南止于淮安市淮阴区王兴枢纽互通北。项目现状按部颁《公路工程技术标准》JTJ-88中平微区高速公路标准建设,双向四车道,设计速度120km/h,标准路基宽度28m。全线于2000年12月建成通车。改造后采用双向八车道高速公路标准,路基宽度42米,设计速度120km/h。
本次设计为JHK-SQ22 (K761+650-K789+458. 997)交通安全设施施工图设计。该路段设置了2处一般互通(沭阳互通、胡集互通),1处服务区(沭阳服务区)。
1.2京沪高速公路焊接网隔离栅设计内容
本册图纸为京沪高速公路新沂至淮安段改扩建工程JHK-SQ22(K761+650-K789+458. 997)施工图设计第一册(三分册)交通安全设施施工图设计中隔离栅设计内容。
1.3京沪高速公路焊接网隔离栅设计依据及采用的主要技术规范(规程)
1)《高速公路交通工程及沿线设施设计通用规范》(JTG D80-2006);
2)《 公路交通安全设施设计规范》(JTG D81-2017); .
3)《 公路交通安全设施设计细则》(JTG/T D81-2017);
4) 《高速公路改扩建交通工程及沿线设施设计细则》(JIG TL80-2014);
5) 《公路交通工程钢结构防腐技术条件》(GB/T 18226-2015);
6) 《隔离栅》(GB/T 26941. 1~6-2011);
7)《公路工程质量检验评定标准》(JTG F80/1-2017);
8) 《公路工程基本建设项目设计文件编制办法》(交公路发(2007) 358号);
9)《关于进一步优化提升高速公路交通安全设施相关设计的若干建议》(苏交建计(2020) 1号);
10)《关于印发京沪高速公路沂淮淮江段扩建工程交安设施施工图设计审查会议纪要的通知》(苏交建京沪扩(2020) 12 号);
11)主体专业施工图设计文件;
12)其他的相关规范规程。
