桥梁防落物网生产厂家

一、桥梁防落物网布设原则
桥梁防落物网设置于天桥、跨线桥的两侧,桥梁若上跨重要道路、航道、水源保护区等且中央分隔带没有设置中央分隔带盖板时,根据防落网设置要求中分带侧设置两道防落网,防止抛落物对主线上跨或下穿重要道路、航道上的车辆、船舶造成伤害,如下穿公路长度小于桥梁长度,其设置范围为下穿公路边沿上跨桥走向向外侧延长10米。
二、桥梁防落物网结构类型
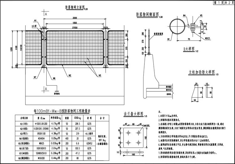
1) 一般立交桥防落物网采用焊接网结构,焊接网采用低碳钢丝,其力学性能应符合《一般用途低碳钢丝》GB343、《一般用途热镀锌低碳钢丝》YB243 的规定,柱距2m,代号Bf-Ww-B。
2) 跨越铁路的立交桥采用钢板网结构,钢板网为整板加工而成,网片与边框采用焊接,柱距 1.5m,代号 Bf-Em-B。
3) 所有钢构件均应进行热浸镀锌防腐处理,钢丝、立柱及紧固件的平均镀锌层附着量分别至少为 125g/㎡、600g/㎡和 350g/㎡,平均镀锌层厚度分别至少为 0.018mm、0.084mm和 0.049mm。应保证先加工焊接后作防腐处理。
4) 各构件采用 I 类成孔,螺栓采用 A,B 级螺栓,其机械性能应符合 GB3098 的规定。
三、桥梁防落物网技术要求及施工注意事项
1) 焊接网安装时要求网面平整,无明显凹凸现象,框架与立柱应连接牢固,整体连接平顺。
2) 钢丝防腐处理前表面不得有裂纹、斑痕、折叠、竹节及明显的纵面拉痕,且钢丝表面不得有锈蚀。钢管防腐处理前不允许有裂缝、结疤、折叠、分层、搭焊等缺陷存在。
3) 螺栓、螺母和带螺纹构件件在热浸镀锌后,应清理螺纹或作离心分离。
4) 防抛网应做接地处理,接地电阻小于 10Ω。
5) 施工时,首先在跨线桥与主线(或被交道路)交点处固定一块法兰盘,然后以该交点为中心,向两侧以 2m 为间距对称固定。当上跨桥梁为斜桥时,桥梁防护网应加长,以确保主线的安全。
6) 施工时,需在合适位置安装接地避雷铜线,铜线埋深应在地表 2m 以下。
7) 符合 JTG F71-2006《公路交通安全设施施工技术规范》的要求。
