刺钢丝隔离栅生产厂家

1、刺钢丝隔离栅布设原则
依据内蒙古地区常规设置方式及相关规范要求,并结合本项目所属区域特点,本项目在一级公路路段为 防止牲畜上路造成危险设置隔离栅(采用刺钢丝网隔离栅)。 隔离栅在公路地界线以内30cm 处设置,在遇到桥梁、通道或天然障碍物时应断开封死,不应留有人、畜进入的空隙,如遇到小涵洞或小障碍物时,隔离栅应直接跨过。
2、刺钢丝隔离栅结构类型
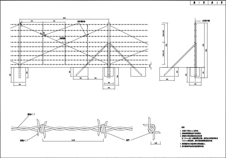
刺钢丝网隔离栅的立柱采用冷弯等边槽钢。立柱间距为3m,每隔30m 设置一处两向斜撑,每隔90m 设 置一处三向斜撑,凡拐角处均应设置单向斜撑。每两条立柱间设置三条竖丝,竖丝间距为 75cm,竖丝与横 丝做绑扎固定处理。在跨越天然障碍时,刺钢丝隔离栅的端头立柱均应设置垂直双向斜撑。刺钢丝隔离栅的 所有钢构件均应进行热浸镀锌后涂塑处理,涂塑颜色为薄荷绿。隔离栅基础均为C30 号预制混凝土。
3、刺钢丝隔离栅技术要求及施工注意事项
(1) 隔离栅所在位置应进行场地清理,且基础严禁座埋在虚土上和易于坍塌的土埂上,软基应进行处理。
(2) 隔离栅可根据地形起伏而布设。
(3) 对于地形起伏较频繁的路段应先沿纵向进行相应整平。
(4) 封头处理可根据实际情况进行适当调整。
(5) 应符合JTG F71-2006《公路交通安全设施施工技术规范》的要求。
