新疆伊犁高速公路刺铁丝隔离栅价格多少钱一米

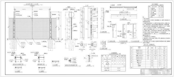
新疆伊犁高速公路刺铁丝隔离栅设计要求:
1、本图刺铁丝隔离栅尺寸均以毫米为单位。
2、刺铁丝隔离栅采用12号镀锌剌铁丝,刺距10cm。
3、刺铁丝隔离栅挂钩与槽钢立柱焊接,刺铁丝拉上后用12号镀锌铁丝将其绑扎在铁钩上。
4、刺铁丝隔离栅立柱每隔99米在立柱两侧加纵向斜撑,每198米或隔离栅改变方向处,在立柱三个方向加斜撑。
5、刺铁丝隔离栅立柱用56X50X2.5冷弯边槽钢,斜撑用49X50X2.5冷弯边槽钢。

新疆伊犁高速公路刺铁丝隔离栅设计要求:
1、本图刺铁丝隔离栅尺寸均以毫米为单位。
2、刺铁丝隔离栅采用12号镀锌剌铁丝,刺距10cm。
3、刺铁丝隔离栅挂钩与槽钢立柱焊接,刺铁丝拉上后用12号镀锌铁丝将其绑扎在铁钩上。
4、刺铁丝隔离栅立柱每隔99米在立柱两侧加纵向斜撑,每198米或隔离栅改变方向处,在立柱三个方向加斜撑。
5、刺铁丝隔离栅立柱用56X50X2.5冷弯边槽钢,斜撑用49X50X2.5冷弯边槽钢。