机场铁丝防御网多少钱一米

机场铁丝防御网设计说明:
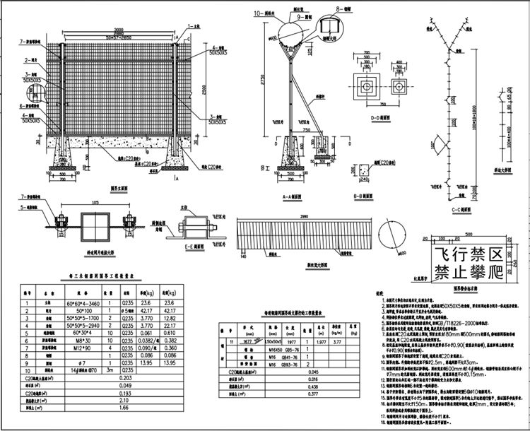
1.本图机场铁丝防御网尺寸单位均以毫米计,比例为示意。
2.机场铁丝防御网网片四边按图示要求设置边框,边框采用50X50X5的角钢,要求四周边框与网片一体成型并浸塑。
3.施焊前,要求各单体矫正平直并去毛刺及锈迹。
4.焊接部位要求过渡圆滑,无焊渣,虚焊,气孔等缺陷。
5.机场铁丝防御网构件采用镀锌后涂塑的防腐形式按照GB /T18226 - 2000标准执行。
6.涂层应均匀光滑,连续,无孔隙裂缝脱皮及其它有害缺陷。
7.基座采用C20水泥混凝土预制,预留直径为180mm深600mm的圆孔待钢筋网框架准确安放后用C20水泥混凝土现浇预留孔。
8.埋设基座和地梁前,应将土基夯实密实度要求不小于0.90(重型击实标准),基座回填土的密实度不小于0.90(重型击实标准)。
9.机场铁丝防御网下部地面设置了地梁,地梁采用C20素混凝土。
10.机场铁丝防御网内侧、外侧的净高度应不低于2. 5m ,离地间隙不大于3cm。
11.机场铁丝防御网顶加刺丝笼以防攀越。刺丝笼直径600mm的14#刺铁丝。钢筋骨架采用直径心距不小于7mm的光圆钢筋。剌丝笼外层浸塑,浸塑层厚度不小于0.15mm。
12.围栏面向公共区域一侧不应有用于攀爬的受力点和支撑点。
13.机场铁丝防御网每相距6米设置一道斜撑杆。
14.鉴于安防需求,若有排水沟下穿围界处,排水沟断面需设置6@Φ10钢筋网片。
15.机场铁丝防御网外要求有宽度不小于5米的隔离带,需对新建围界5米外的土方边坡进行整平,保证围界净高要求。
16.标示牌间距宜不大于150m。围界警告标示牌采用镀锌钢板,板厚2mm ,设计防腐年限8年;采用焊接或者用螺栓固定于围界上。
17.钢筋网网片与边框焊接,搭接长度不小于1厘米。
18.机场铁丝防御网具体布设位置见”附属工程平面图“。
