铁路框架桥防落网生产厂家

一、铁路框架桥防落网一般说明:
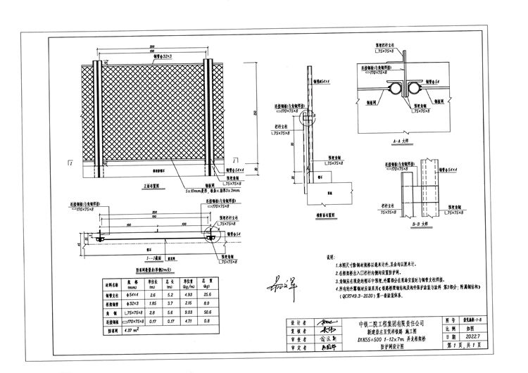
1.本图尺寸除钢材规格以毫米计外,其余均以厘米计。
2.在框架桥出入口栏杆内侧均设置防护网。
3.角钢应在现浇的帽石中预埋,外露部分在现场安装时与钢管支柱焊接。
4.所有的外露钢材应该采用《铁路桥梁钢结构及构件保护涂装与涂料 第3部分:附属钢结构》
( QCR749.3-2020) 第一套涂装体系。
二、铁路框架桥防落网参数要求:
1.钢管支柱Φ54*4mm;
2.框架钢管Φ32*3mm;
3.角钢75*75*8mm;
4.连接钢板170*75*8mm;
5.外形尺寸2*2.5米。
