万源市快速路防抛网生产厂家

万源市快速路防抛网一般介绍:
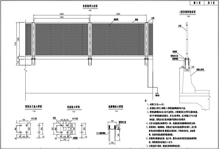
1、本图尺寸以mm计。
2、在混凝土护栏上每隔2m预埋地脚螺栓和法兰盘。
3、预埋地脚螺栓应先与法兰盘焊死,且需确保其与护栏主筋相连接,设计中预埋地脚故意超长,并且末设弯钩,以方便施工中与主筋的连接,预埋后应注意对地脚外露部分妥善保护。
4、立柱与连接板应确保焊为一体,连接板通过地脚螺栓固定生根。
5、除紧固件、地脚螺栓、预埋法兰盘采用热浸镀锌处理外,其它构件均应进行镀塑处理,镀塑层必须亮泽,不得存在针孔、流淌堆积、粘结和烧焦裂解等镀塑缺陷。
6、万源市快速路防抛网应做接地处理。施工时,需在合适的位置安装接地避雷铜线,铜线埋深应在地表2m以下。
7、本图适用于桥梁、通道处防落物网的设置。
