陈沙大道市政护栏供应工厂,白色京式栏杆,道路隔离栏公路栅栏

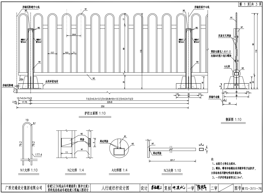
1.单位mm,比例:示意。
2.制作前要求各单体平整,并去除毛刺锈速。
3.焊接部位要求焊缝过渡圆滑,无夹渣、虚焊、气孔等缺陷。
4.构件焊毕修正后,整体曲翘度不得大于8mn。
5.护栏整体热镀锌,再进行静电喷涂处理(白色)。
6.护栏在交叉口范围内应渐变成70cm低护档,渐变后长度不应小于交叉口视距三角形要求的停车视距。


1.单位mm,比例:示意。
2.制作前要求各单体平整,并去除毛刺锈速。
3.焊接部位要求焊缝过渡圆滑,无夹渣、虚焊、气孔等缺陷。
4.构件焊毕修正后,整体曲翘度不得大于8mn。
5.护栏整体热镀锌,再进行静电喷涂处理(白色)。
6.护栏在交叉口范围内应渐变成70cm低护档,渐变后长度不应小于交叉口视距三角形要求的停车视距。
