高速公路F-Em-C钢板网隔离栅

一、高速公路F-Em-C钢板网隔离栅简介
隔离栅分为钢板网、编织网、电焊网、刺钢丝及常青绿篱等型式。选择隔离栅主要从功能要求、美观要求以及经济角度来考虑。各类隔离栅功能相同,均是用来阻止人、畜进入高速公路和防止非法侵占公路用地的设施。从美观方面来说,钢板网美观,其它种类次之。从每公里造价上讲,钢板网昂贵,编织网、电焊网次之。
二、高速公路F-Em-C钢板网隔离栅设计原则
设置隔离栅的目的是防止行人或与高速公路无关人员随意穿越高速公路,避免牲畜或其它动物进入高速公路,防止意外事故的发生。其具体布设原则是:
1) 高速公路主线采用全部控制出入。
2) 隔离栅的中心线:沿公路用地界线以内 20~50cm 处。
3) 路侧有水渠、池塘、湖泊等天然屏障,将来不用担心有人进入和非法侵占公路用地的区段,不设置隔离栅。
4) 桥梁(大中小桥、分离立交、天桥)、通道、涵洞、隧道等构造物,除桥头、洞口需与路堤隔离设施连接封死以外的区段,可不设置隔离栅,但应注意端头围封处理,围封形式见隔离栅端头处理图。
5) 隔离栅布设应根据公路用地界地形进行必要的整修,平坦地段水平设置,坡形地段顺坡设置或按阶梯形设置。
6) 隔离栅遇到长度小于 5m 的沟渠,可以采取直接跨过措施;当遇上隔离栅底部跨过排水沟时,进行特殊处理,防止人、畜钻入。
7) 隔离栅遇到互通立交时,沿匝道方向布设。
三、高速公路F-Em-C钢板网隔离栅结构类型
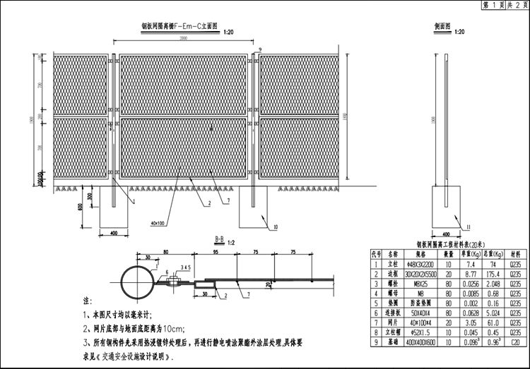
考虑到改扩建期间隔离栅临时围避利用的因素,本设计中一般路段主要采用了钢板网型式,对风景区、旅游区、著名地点、水源保护区等区段采用钢板网隔离栅。钢板网隔离栅由网片、边框、立柱等构件组成,现场连接。为方便道路养护人员的进出,在大桥、特大桥桥台处隔离栅设置检修门。隔离栅基础均为C20号混凝土。
四、高速公路F-Em-C钢板网隔离栅技术要求及施工注意事项
1) 钢板网采用低碳钢板,其化学性能和机械性能应能满足 GB 912、GB/T11253 的规定。
2) 钢板网所有钢构件均应进行防腐处理,先作热浸镀锌内涂层,后静电喷涂聚酯外涂层处理,钢板、立柱及紧固件的内涂层单面平均镀锌层附着量分别不低于 275g/㎡、275g/㎡和120g/㎡,外涂层材料为聚酯,聚酯涂层厚度不小于 0.076mm(单面),颜色为绿色。
3) 布设表中的数量仅表示里程,工程数量汇总表中工程量已乘地形系数。
4) 隔离栅施工时应注意围封严密,任何路段不得有任何人、畜可以通过的间隙。
5) 由于施工现场实际地形情况复杂,施工过程中必须严格参照设计原则全线排查,合理选用设计的围封方式,如有图纸以外的特殊情况,应及时向设计单位反映。
6) 隔离栅规定值或允许偏差见《公路公路质量检验评定标准》(JTG F80/1—2017)表11.10.2 的规定。
