高速公路Gs-N-Gw防眩设施防眩网

一、高速公路Gs-N-Gw防眩设施防眩网布设原则
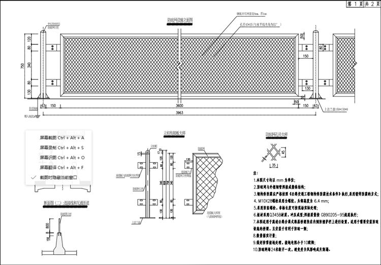
本项目所在地属于台风高发区,防眩板易被吹折断。为减少后期养护费用,本项目整体路基段在中央分隔带大、中、小桥、通道、中分带开口处等无法采用植物防眩的构造物上设立防眩网防眩(本项目仅部分无法设置绿化桥梁段设置防眩网,其余桥梁段以绿化防眩为主,由绿化专业设计);互通立交双向匝道处由于转弯半径较小,设置防眩板防眩。对于分离式路基分合过渡段处设置防眩网防眩。为了保证视距,在平曲线路段,防眩设施设于平曲线靠内侧。
二、高速公路Gs-N-Gw防眩设施防眩网结构类型
防眩网板材采用Q345B材质,冲压成型。防眩板采用玻璃钢材质。所有钢构件均应进行镀锌防腐处理,立柱的内外表面均应作热浸镀锌处理,镀锌量不小于600g/㎡;钢丝镀锌量不小于300g/㎡;其他紧固件、连接件镀锌量不小于350g/㎡。
三、高速公路Gs-N-Gw防眩设施防眩网技术要求及施工注意事项
1) 曲线路段防眩设施设置在中央分隔带曲线内侧。
2) 安装时,应保证防眩网(板)支撑立柱在一条直线上,并保证立柱顶面在同一水平面上。
3) 应尽量使防眩网(板)在一条纵线上。
4) 防眩网(板)应保证垂直。
5) 应符合《公路交通安全设施施工技术规范》(JTGF71-2006)的要求和规定。
