水库隔离网多少钱一米

水库隔离网一般说明:
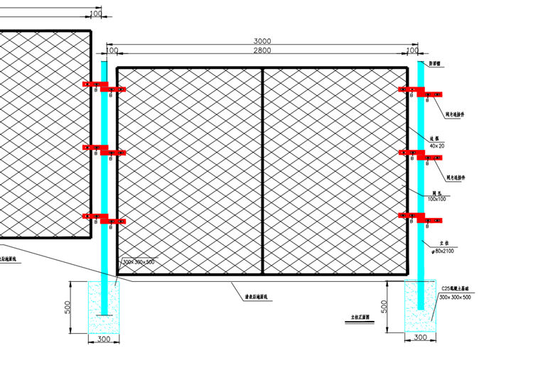
1、本图尺寸比例为1:15。
2、图中尺寸单位为mm。
3、水库隔离网立柱采用C25混凝土现浇。
4、水库隔离网孔的规格为100mmx100mm,隔离网片采用Q235低碳冷拉钢丝电焊网(或勾花网),钢丝直径5mm。网片钢丝采用镀锌钢丝,其力学性能须符合GB343-94中对镀锌钢丝的相关要求。立柱、立柱钢板、边框、网片连接件采用A3钢;立柱与立柱钢板、边框与网片均采用电焊接,立柱与立柱钢板焊脚高度10mm,焊接牢固。所有钢材力学性能应符合GB700-88要求,焊接部位要求过渡光滑,无夹渣,无虚焊,无气孔等缺陷,构件焊接成型后的整体曲翘度横向不得大于7mm,纵向不得大于5mm。立柱、立柱钢板、边框、网片及网片连接件均采用先热浸镀锌再浸塑的防腐处理措施,浸塑层厚度0.6mm,颜色为深绿色。
5、本图型式适用于清表后覆盖层厚度小于1.2m路段。
