水电站高密网透空围栏技术参数

水电站高密网透空围栏一般介绍:
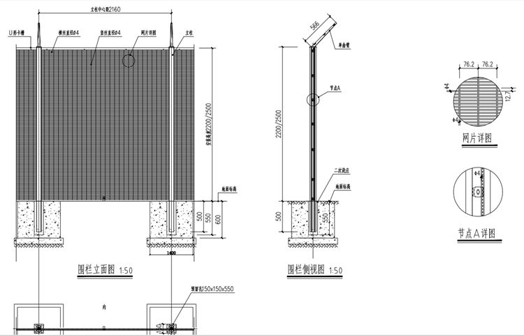
1.图中所标注尺寸单位以mm计。
2.本套图为溪洛渡水电站核心区、控制区及限制区高密网透空围栏施工详图。
3.透空围栏由立柱(含盖帽)、网片、∪形卡槽、304不锈钢六角卡爪、五金附件等部件组成。
4.立柱采用105*75异形型材,材质为铅合金,厚度为2.5。
5.横丝、竖丝均采用直径Φ4热镀锌冷拔钢丝,镀锌量≥100g/㎡,采用压力熔焊制成。
6.围栏立柱中心距为2160,安装高度为2500, 网格76.2x12.7。
7.立柱顶部向外侧设曲臂,与水平方向成45度夹角,长度为566 ,表面热镀锌,镀锌量>275q/㎡。
8.加工工艺:网片焊接成型后-脱脂-纯水清洗-硅烷化处理-烘干-环氧底粉-高温聚合处理-彩色聚酯涂层-高温聚合处理,涂层厚度≥100um ,防腐能力达到10年以上。
9.基础需用C30混凝土浇注,立柱预留孔150x150x550 ,立柱埋入后二次浇注固定,埋入深度为500。
10.图示基础仅供参考,工程实际基础尺寸的大小及深度,需根据现场尺寸及土质做调整。
11.环境保护与安全文明施工必须按照国家相关规范要求执行。
12.危大工程:本工程存在危大(超危大)工程相关的重大节点和环节,应按国家相应规定执行实施。
13.未提及事宜应按国家相关规范、图集执行。
