南昌公路立交桥防抛网技术参数

说明:
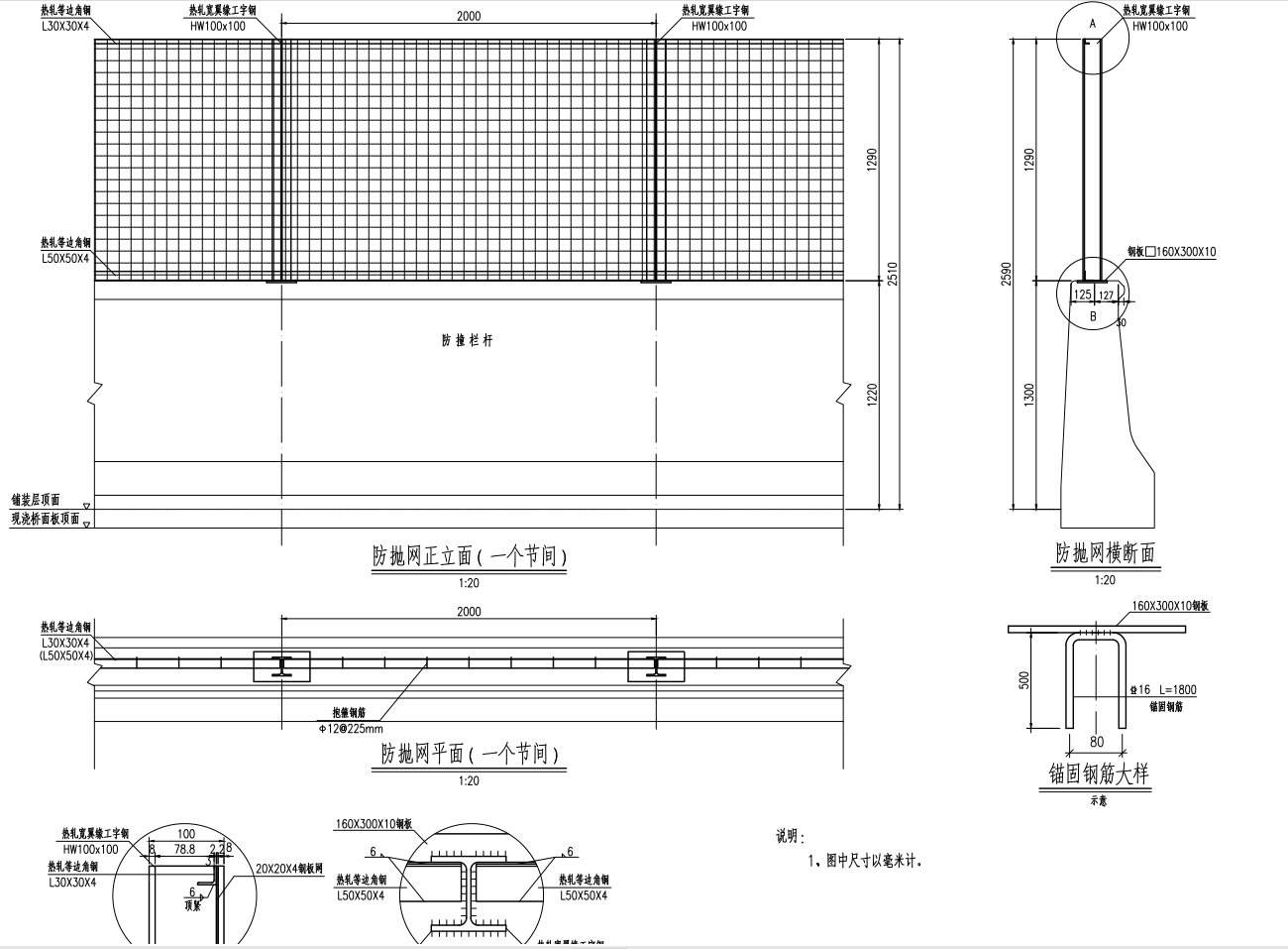
1、图中尺寸以毫米计。
2、防落网采用钢板网,钢丝直径4mm,两度红丹防锈漆打底,外涂面层油漆三度。
3、立柱采用HW100x100热轧宽翼缘工字钢,通过与栏杆顶预埋钢板焊接固定。
4、横向加固采用热轧等边角钢。顶部为L30X30X4,与工字钢立柱焊接,焊缝高度为6mm;底部为L50X50X4,与工字钢立柱、预埋钢板焊接,焊缝高度为6mm。
5、立柱与防抛网可在工厂焊接成网片,防抛网与项部、中部、底部角钢立柱采用φ12钢筋抱箍固定,横向间距为225mm。
6、钢材焊接焊缝需满足二级焊缝要求,焊接部位要求过渡圆滑,无夹渣、虚焊、气孔等焊接缺陷;焊条采用E50系列,并需保证防锈蚀性能。
7、构件组焊成形后需进行整体矫正,整形后的整体曲翘度不大于5mm。
8、栏杆混凝土浇筑时需注意预埋锚固钢筋及钢板
9、钢板与锚固钢筋间采用双面焊接,焊缝长度为50mm。
10、所有钢构件均应进行金属防腐处理,宜采用热浸镀锌方法,其材料及工艺要求应符合《JT/T374-1998》中5.3.6条要求。
11、现场抱箍连接时,需保证网片牢固。
12、钢板网片安装在热轧宽翼缘工字钢立柱内侧。
13、本图数量表中数量按栅栏一个节间2米考虑,未计损耗,防抛网设置范围为:
第1~第3跨,顺桥向单侧长度120m。
14、防抛网可采用定型产品,但须满足《南昌铁路局立交桥防抛网管理办法》(南铁工
务[2017]14号)相关规定。联系方式:152-0328-1311

