机场飞行区围界
一、机场飞行区围界改造工程设计依据
1.总图、场道专业提供的地势平整图。
2.《混凝土结构设计规范》( 2015年版) (GB 50010-2010) ;
3.《构筑物抗震设计规范》(GB50191-2012);
4.《建筑地基基础设计规范》(GB 50007-2011);
5.《建筑地基处理技术规范》(JGJ79-2012);
6.《民用机场飞行区技术标准》(MH 5001-2013) ;
7.《民用运输机场安全保卫设施标准》( MH/T7003-2017);
8.东北管理局关于营口机场飞行区围界改造项目初步设计及概算的批复[民航东北局函( 2019)57号];
9.机场现状资料。
二、机场飞行区围界改造工程基本数据
1.构筑物的安全等级为二级;
2.标准冻深1.10m;
3.地基基础设计等级丙级。
三、机场飞行区围界改造工程材料要求
1.钢材采用《碳素结构钢》(GB/T700-2006)规定的Q235B钢;钢筋网采用冷拉低炭钢丝电焊网,并经镀层防腐处理,要求防腐处理前的冷拉低炭钢丝直径不小于5mm,抗拉强度应达到390MPa,焊点抗拉力应达到1.50kN。
2.焊条采用E4303型电焊条,焊条性能应符合《非合金钢及细晶粒钢焊条》(GB5117-2012)的规定。
3.钢筋网冷拉低炭钢丝及其他构件的焊接部位要求饱满,不得有夹渣、气孔、咬肉、未焊透等缺陷。浸塑层必须均匀,不得存在针孔、流挂、裂纹.脱落、漏镀、脏物粘附等缺陷。焊缝质量检验应达到《钢结构工程施工质量验收规范》(GB50205-2012)所规定的二级标准要求。
4.金属表面先做热镀锌处理,镀层厚度:网片及连接件部分不小于120g/㎡ ,立柱及延伸臂部分不小于275g/㎡。涂塑层采用高附着力聚酯涂层,涂层厚度≥80μm ,涂塑工艺由内及外为富锌磷化、有机环氧涂层、热固性聚酯粉末涂层。
5.网片的焊接施工技术要求及质量应符合《钢筋焊接及验收规程》( JCJ18-2003) ;焊接施工技术要求及质量可参考《建筑钢结构焊接技术规程》( JCJ81-2002) ;钢筋网围界的防腐施工技术要求及质量可参考《公路交通工程钢构件防腐技术条件》( GB/T18226-2015) 。
6.混凝土采用C35混凝土,环境类别为3a类。
7.混凝土的基本要求:水胶比0.50,氣离子含量0.15% ,碱含量3.0kg/m³。
8.保护层厚度:基础梁35mm。
四、机场飞行区围界改造工程拆除并新建钢筋网围界
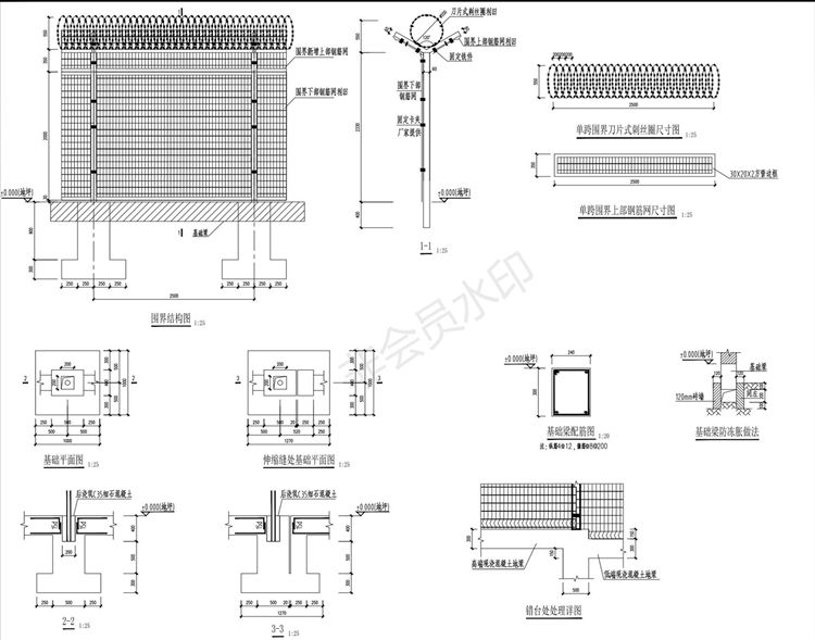
1.拆除并原址新建的围界具体位置及长度见总图,新建钢筋网围界高度为2.850米,立柱间距2.500米,下部钢筋网片利旧。
2.立柱及延伸臂均为圆钢管,外径60mm,壁厚3mm。
3.立柱顶部应加盖柱帽,立柱与钢筋网的连接采用防盗形式并经防腐处理。钢筋网围界的网片、立柱及延伸臂的防腐处理要求采用金属保护层结合涂塑保护层的复合保护方式。
4.新建钢筋网围界每30m设置一道伸缩缝。
五、机场飞行区围界改造工程现有钢筋网围界新增地梁及加高
1.新增地梁及加高的围界长度、位置见总图。
2.围界加高部分套管使用圆钢管,外径70mm,壁厚3mm。
3.围界加高部分的钢筋网片技术要求与新建钢筋网片一致。
六、机场飞行区围界改造工程地基与基础
1.假定平整后地坪标高为±0.000。
2.新建钢筋网围界基础采用素混凝土独立基础。
3.基础应落于处理后的压实填土上,要求压实填土承载力特征值不低于120kPa。
4.基坑回填应分层夯实,其中回填土不得含有生活垃圾或有机质废料,填土施工应对称、均匀,人工夯实每层厚度不大于250mm,机械夯实每层厚度不大于300mm,压实系数不低于0.94。
5.施工时应注意清除围界基础下部存在的淤泥质土,换填砂砾石或级配碎石,并对下部土基进行夯实,压实系数大于0.92。

