井场围栏及大门价格多少钱

井场围栏及大门一般说明:
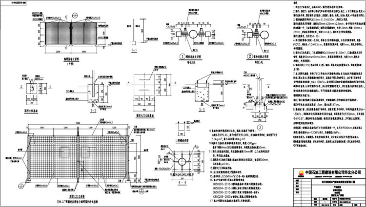
1.图注井场围栏尺寸以毫米计,标高以米计。围栏位置见总图专业图纸。
2.井场围栏、围栏门、标识牌《按油气田站场目视化设计规定》执行, (以下简称为《规定》)。围栏成品外购,围栏制作与安装后,应稳固、整齐、美观,达到《规定》中的标准化要求。
3.井场围栏非防翻越围栏单体尺寸2.5mx (1.5+0.5)m,具体尺寸见图。围栏边框采用方形钢管,规格为25mmx25mmx2.5mm,每个单体中间设竖向布置的加强筋一个,与边框规格相同 ;钢网采用低碳钢丝,丝径4.0mm,网眼141mmx78mm ,防腐采用浸塑处理,包塑1mm以上。钢丝网与方管边框焊接。围栏为艳绿色,色号为SJ-10。
4.两个井场围栏单体之间设一个立柱,单体与立柱用螺栓连接 ,立柱采用圆形钢管,规格Φ50X3 ,钢柱长( 1.5+0.5)m,防腐采用浸塑处理,包塑1mm,颜色为艳绿色,色号同围栏。
5.井场围栏大门为双扇门,门柱为圆钢管80x3.5mm (长1.55m) ,门扇边框采用方形钢管,规格为40mmx40mmx3mm ,防腐采用浸塑处理,包塑1mm, 颜色为艳绿色,色号同围栏。
6.井场围栏钢材采服235B,焊条采脏43型.钢材.焊条均应有质量保证书。焊缝质量等级为三级。
7.本井场围栏工程暂无地勘,参考CPECC华北分公司勘察事业部《吉兰泰油田产能地面建设及配套工程》岩土工程勘察报告进行设计,基底位于第1层细砂层上,由于第1层细砂层力学性质较差较松散, fak=100kPa。应先将第1层细砂层清除换填级配砂石进行处理。根据场区盐渍土分布位置统计分析,其分布位置随机性较大, 按含盐量分类应属中盐渍土,按含盐性质分类为亚硫酸盐渍土.可不考虑盐渍土地基的盐胀性和溶陷性。勘察期间未见地下水。场区上部土壤对混凝土结构具强腐蚀性,对钢筋混凝 土中的钢筋具有中等腐蚀性。场区季节性冻土标准冻深为112cm ,最大冻深147cm。
8.井场围栏基础施工前,应先清除基础底下细砂层,清除至第2层中砂层,中砂层地基承载力fak=130kPa ,用级配砂石分层回填夯实至设计标高,每层厚度不大于300mm ,压实系数不小于0.97.级配砂石应分层检测,每层压实系数满足要求后,方可进行上层回填。处理深度和放坡现场确定。处理范围:每侧宽出基础外边不小于处理深度的一半,不小于500mm,回填处理后承载力特征值按fak=120kPa设计,压缩模量≥8MPa。经检验承载力、压缩模量、密实度等满足要求,设计确认无误后方可进行基础施工。现场根据实际情况调塾,若未到中砂层 ,应按照上述方法进行处理;若已经到中砂层,可不再换填处理。
9.井场围栏基础所处的环境类别为三b类,混凝土应满足下列要求:水胶比不大于0.40,离子含量不大千0.08% ,当为碱活性骨料时,碱含量不大于3.0kg/㎡ ,最小水泥用量340kg/m³。
10.井场围栏地面以下基础外表面刷环氧沥青涂层,厚度≥500μm.基底下铺设4mmSBS改性沥青卷材,每侧宽出基础边缘50mm。
11.井场围栏立柱基础安装前,先在基槽内铺设10mm厚1 : 2.5水泥砂浆找平层,再安装立柱基础。
12.井场围栏及大门钢柱下混凝土基础四周回填土分层压实,每层厚300mm ,压实系数≥0.94。
13.井场围栏大门门锁成品外购。
14.业主应定期巡检维护更换损坏构件。
15.基本风压:0.50kN/m2 ( 50年一遇)地面粗糙度B类。
16.井场围栏施工中应遵守的主要施工质量验收规范:
GB50202- 2018《建筑地基基础工程施工质量验收标准》;
GB50204- 2015《混凝土结构工程施工质量验收规范》;
GB50300- 2013《建筑工程施工质量验收统-标准》;
GB50205- 2020《钢结构工程施工质量验收标准》。
17.施工中井场围栏立柱基础应注意避开工艺管线位置。
