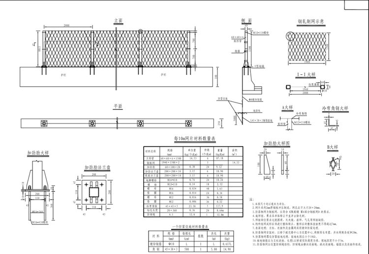
桥梁防落物网
一、桥梁防落物网设计要求
1.本图尺寸均以毫米为单位。
2.网片采用2mm厚钢板冲压制成,网孔应不大于20 x 20mm。
3.防落物网为钢板网,应符合《隔离栅第6部分钢板网》的要求。
4.施焊前,要求各单体矫正平直并去除毛刺。
5.焊接部位要求过渡圆滑、无夹缝、虚焊、气孔等焊接缺陷。
6.构件组焊成形后须进行整体矫正,整形后的整体扭曲度不得超过7mm。
7.表面处理:立柱、连接件及金属网采用镀锌防腐处理。
8.防落物网安装时,以桥下被交路中心为设置中心,两侧等长布置,并向两侧各延伸20m。
9.防落物网需设防雷接地处理,接地电阻应小于10Ω。
10.接地钢筋应与立柱连接,长度L以桥梁实际高度为准,埋地深度不小于5m。
11.防落物网应设置防倾绳结构,防倾绳由横向连接绳、纵向连接绳、锚固点及连接件组成。
二、每10米桥梁防落物网材料数量
1、方形管,60*60*6*1500mm,6个;
2、钢板网网片,1500*1940mm,2个;
3、加强肋,60*100*20mm,24个;
4、加劲法兰盘,200*200*10mm,6个;
5、底座法兰盘,200*200*10mm,6个;
6、冷弯角钢,45*45*5mm,5个。

